Кутузовский пр-т, 88
49 000 000 ₽
Аренда от собственника| Кутузовский пр., 88
Характеристики помещения:
Аренда: ТРЦ целиком
Этаж: 5 этажей
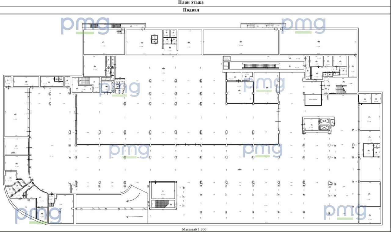
- паркинг — 5 560 м² из них 100 парковочных мест, остальное павильоны, (состояние за выездом арендатора)
- 1-й эт — 3 454,5 м² — смешанной планировки (состояние за выездом арендатора)
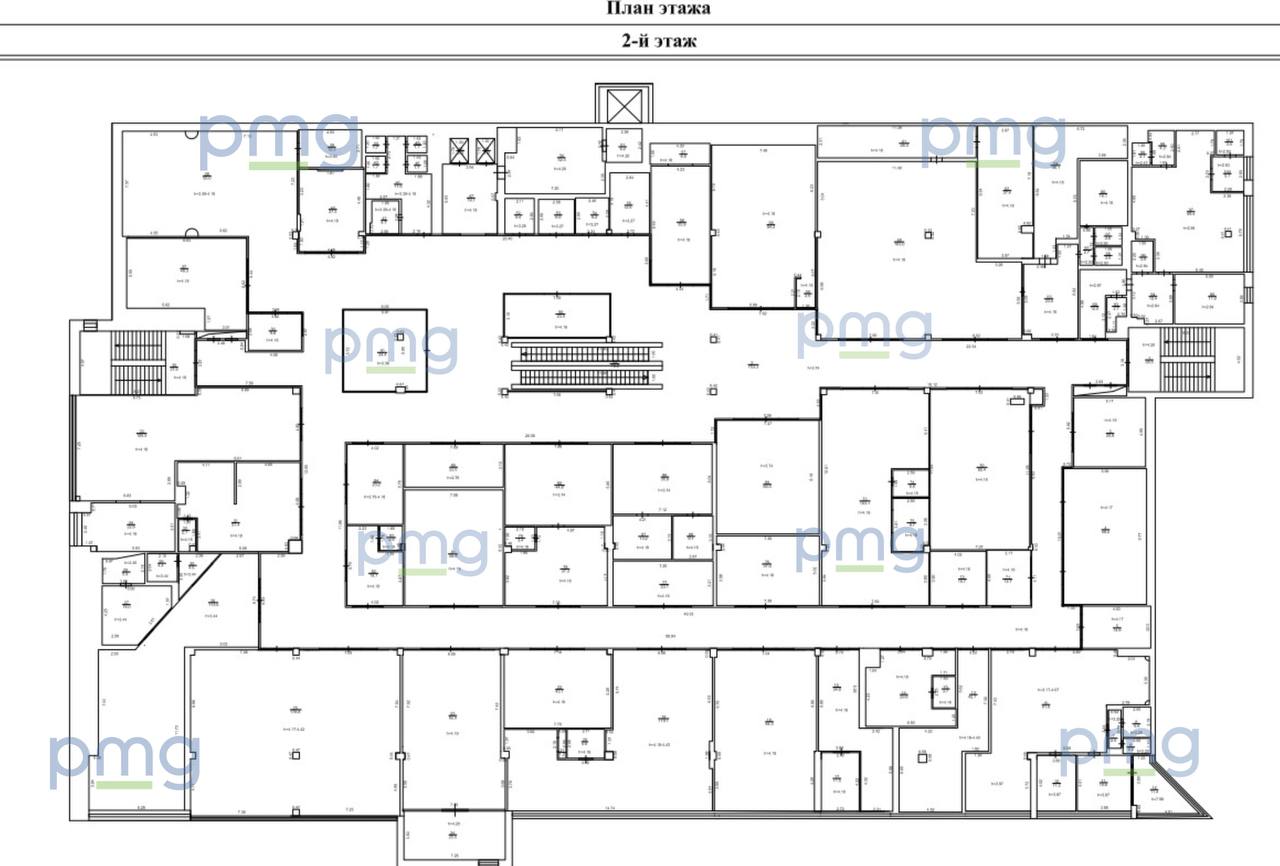
- 2-й эт — 3 606,4 м² — смешанной планировки (преимущественно нарезка на павильоны разного метража) (состояние за выездом арендатора)
- 3-й эт — 3738,4 м²- открытая планировка — состояние Shell&Core
- 4-й эт — 1240,1 м² — смешанной планировки (состояние за выездом арендатора)
- 5-й эт — 1170 м² — смешанной планировки (состояние за выездом арендатора)
— 2003 года постройки
— Входные группы с 3-х фасадов
— Здание оборудовано пассажирскими и грузовым лифтами
Преимущества:
— Панорамные окна, вид на город
— Высокий трафик динамичная локация на пересечении Кутузовского проспекта и Рублевского шоссе
— Шаговая доступность от метро Кунцевская, БКЛ, МЦД
— Широкие рекламные возможности по всему периметру фасада
— Дизайнерский ремонт, готово к эксплуатации
— Наличие подземного паркинга
Локация:
— Кунцевская, БКЛ и МЦД-1 — 400 м
— ЗАО, Фили-Давыдково р-он
— Пересечение Кутузовского проспекта и Рублевского шоссе
100% комиссия брокерам, арендные каникулы обсуждаются, возможность заключения ДОЛГОСРОЧНОГО ДОГОВОРА, помещение готово к эксплуатации
ЗВОНИТЕ СЕЙЧАС, чтобы согласовать просмотр
| Площадь | 18 769,4 м² |
|---|---|
| Этаж | 5 этажей |
| Стоимость за м² с НДС | 31 328 ₽ м²/г |
| Назначение | офис, псн, торговое |
| Объект | Кутузовский проспект, 88 |


