Кавказский бульвар, д. 51к2

105 000 

Аренда от собственника| Кавказский бульвар, д. 51к2

Характеристики помещения: 

Локация: Москва, район Царицыно
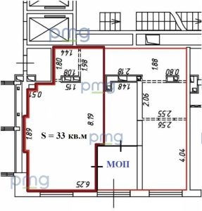
Площадь: 33 м² (есть возможность объединения 68 м²)
МАП: 105 000 руб. (38 182 руб./м²/г)
Этаж: 1-й
Мощность: 13,6 кВт

Преимущества:
— Помещение свободного назначения: офис, торговля, ПСН
— Высокий трафик – локация в спальном районе новостроек ПИК (дома заселены)
— Витринные окна, естественное освещение
— Все коммуникации: ХВС, ГВС, водоотвод

Локация:
— Шаговая доступность от остановок общественного транспорта
— Рядом МСД, удобные выезды
— Парковка

Идеально подойдёт для:
📍 Офиса (юридические услуги, IT, консалтинг)
🛍 Торговой точки, шоурума, бутика
💆‍♀ Салона красоты, студии маникюра, косметологии
🏥 Медицинского кабинета, массажного кабинета
📚 Образовательного центра, репетиторской студии

Арендные каникулы – запустите бизнес без лишних затрат!

📞 Звоните прямо сейчас, чтобы согласовать просмотр!

Площадь

33 м²

Этаж

1

Стоимость за м²

38 182 ₽ м²/г

Назначение

street retail, офис, псн, торговое

Объект

Кавказский бульвар, д. 51

Вы недавно смотрели